на главную
КП Сходня Лайф
/
Дома
/
Дом ЛАЙФ 121/127 + участок 5.22 соток
Лайф 121/127
Готовность дома 90%
17 417 000 ₽
Участок №127 | 5.22 сот.
121 м²
3 спальни
2 санузла
Записаться на просмотр
Лайф 121/127
Готовность дома 90%
Участок №127 | 5.21 сот.
170 м² / 4 спальни / 3 санузла
17 417 000 ₽
Записаться на просмотр
121 м²
3 спальни
2 санузла
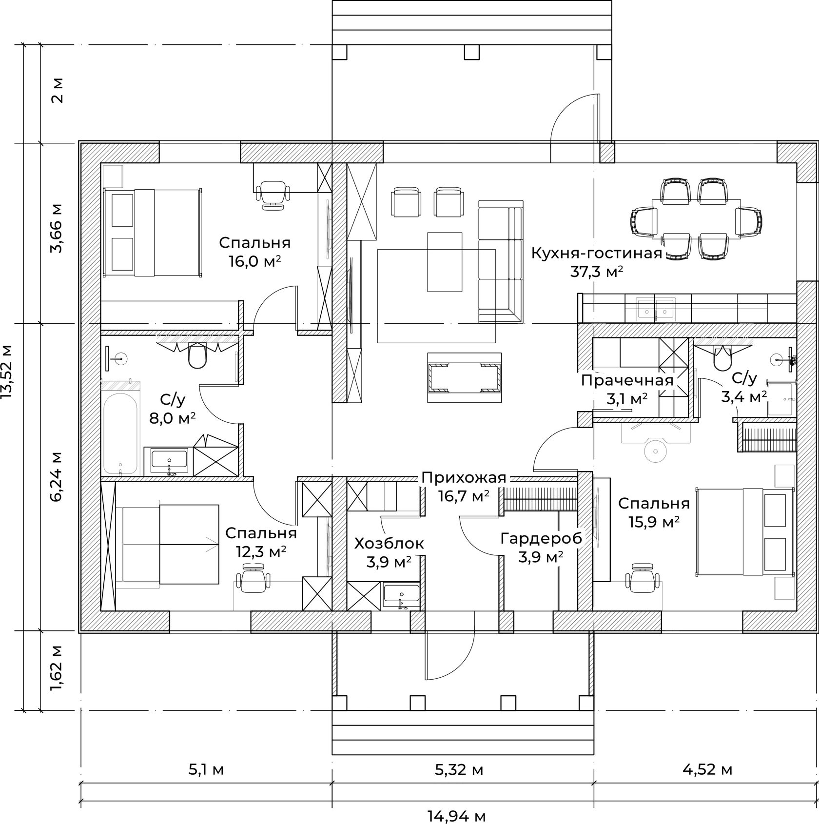
Планировка дома
Комплектация
Фундамент
55 свай ростверк 400х500 мм марка бетона м300
Полы
Утепление пенополистерол 50 мм, полусухая стяжка 80 мм. Утепление цоколя.
Стены
Механизированная штукатурка под обои (глянцованная)
Перекрытие
Монолитная плита
Кровля
Мягкая черепица шинглас
Фасад
Декоративная штукатурка с планкеном
Окна
3-камерный профиль 70 мм
Двери
Алюминиевый стеклопакет
Комплектация «Вайт Бокс»
Электричество
Разведено 3-4 точки на помещение, 3-х жильным медным кабелем
Водоснабжение
Скважина 46 метров, заведено в дом, разведено до мокрых точек
Канализация
3 кольца, 1 секция, заведена в дом, разведена до мокрых точек
Отопление
Теплые водяные полы от установленного электрокотла 9 кВт. Напольные конвекторы
Заезд на участок
Труба, щебень
Подсветка фасада
Согласно рендеру
Участок с домом на карте поселка
Участок свободен
Участок забронирован
Участок продан
Участок №127
5.22 соток
Дом 120 м² на участке № 127 площадью 5.22 соток
Нажмите на генплан, чтобы увидеть все участки
Оставьте заявку, наш специалист свяжется с вами в течение 15 минут!
Понравился дом, но не его расположение?
Построим такой же на другом участке!
Нажимая на кнопку «Жду звонка», вы даете согласие на обработку персональных данных.
{"0":{"lid":"1662479902457","ls":"10","loff":"","li_type":"nm","li_name":"Name","li_ph":"*Ваше имя","li_nm":"Name"},"1":{"lid":"1662479902458","ls":"20","loff":"","li_type":"ph","li_name":"Phone","li_ph":"+7 (999) 000-00-00","li_req":"y","li_mask":"+7 (999) 000-00-00","li_masktype":"a","li_maskcountry":"RU","li_nm":"Phone"},"2":{"lid":"1681984895192","ls":"30","loff":"y","li_type":"hd","li_name":"ymclientid","li_value":"+clientYandexId+","li_nm":"ymclientid"}}
все домовладения
Готовые дома
Дом ЛАЙФ 121/129
+ участок № 129 | 5.20 соток
121 м² / 3 спальни / 2 санузла
17 417 000
₽
ПОДРОБНЕЕ
Дом БАВАРИЯ 180/92
+ участок № 92 | 6.05 соток
180 м² / 4 спальни / 3 санузла
16 320 000
₽
ПОДРОБНЕЕ
Дом БАРН КОМБО 185
+ участок № 94 | 6.69 соток
185 м² / 4 спальни / 3 санузла
17 900 000
₽
ПОДРОБНЕЕ
Дом ДРИМ ХАУС 175
+ участок № 27 | 7.24 соток
175 м² / 3 спальни / 2 санузла
16 900 000
₽
ПОДРОБНЕЕ
Дом ЛАЙФ 152/81
+ участок № 81 | 6.02 соток
152 м² / 3 спальни / 2 санузла
18 450 000
₽
ПОДРОБНЕЕ
Дом ОТТО 120/26
+ участок №26 | 6.00 соток
120 м² / 3 спальни / 2 санузла
16 990 000
₽
ПОДРОБНЕЕ
Дом МАРШАЛ 190/21
+ участок №21 | 6.00 соток
190 м² / 4 спальни / 3 санузла
20 990 000
₽
ПОДРОБНЕЕ
Дом ЛАЙФ 125/130
+ участок №130 | 5.20 соток
125 м² / 3 спальни / 2 санузла
17 489 600
₽
ПОДРОБНЕЕ
Дом ЛАЙФ 132/128
+ участок №128 | 5.21 соток
132 м² / 3 спальни / 2 санузла
17 435 000
₽
ПОДРОБНЕЕ
Дом ЛАЙФ 121/130а
+ участок №130а | 5.20 соток
121 м² / 3 спальни / 2 санузла
17 417 000
₽
ПОДРОБНЕЕ
Дом ЛАЙФ 132/131
+ участок №131 | 5.20 соток
132 м² / 3 спальни / 2 санузла
17 435 000
₽
ПОДРОБНЕЕ
Дом ЛАЙФ 250/75
+ участок №75 | 7.54 соток
250 м² / 5 спален / 3 санузла
22 380 000
₽
ПОДРОБНЕЕ
Дом ЛАЙФ 250/80
+ участок №80 | 6.04 соток
250 м² / 5 спален / 3 санузла
21 570 000
₽
Фасад + 3 млн
₽
ПОДРОБНЕЕ
Остались вопросы?
Свяжитесь с нами или приезжайте в офис отдела продаж
Нажимая на кнопку «Получить консультацию», вы даете согласие на обработку персональных данных.
Контакты
Телефон
+ 7 (495) 021 95-96
Адрес
Коттеджный поселок «Сходня Life», в районе деревни Голиково
info@dmitrovka-zn.ru
Почта
{"0":{"lid":"1531306243545","ls":"10","loff":"","li_type":"nm","li_name":"Name","li_ph":"Ваше имя","li_nm":"Name"},"1":{"lid":"1531306540094","ls":"20","loff":"","li_type":"ph","li_name":"Phone","li_ph":"+7 (999) 000-00-00","li_req":"y","li_mask":"+7 (999) 000-00-00","li_masktype":"a","li_maskcountry":"RU","li_nm":"Phone"},"2":{"lid":"1681984917448","ls":"30","loff":"y","li_type":"hd","li_name":"ymclientid","li_value":"+clientYandexId+","li_nm":"ymclientid"}}
Заказать звонок
Позвонить
Прайс-лист
Запишитесь на просмотр дома мечты!
Оставьте свои контактные данные и приезжайте на просмотр понравившегося участка
Записаться на просмотр
Нажимая на кнопку «Записаться на просмотр», вы даете согласие на обработку персональных данных.
Оставьте контакты, мы пришлем прайс-лист и проконсультируем в любом удобном мессенджере!
Свяжемся с Вами в течение 15 минут
Жду звонка
Нажимая "Жду звонка" Вы соглашаетесь с условиями
обработки персональных данных
Оставьте контакты, наш менеджер проконсультирует Вас по поселку!
Свяжемся с Вами в течение 15 минут
Жду звонка
Нажимая "Жду звонка" Вы соглашаетесь с условиями
обработки персональных данных
Оставьте контакты, наш эксперт по поселку позвонит Вам и ответит на все вопросы!
Свяжемся с Вами в течение 15 минут
Жду звонка
Нажимая "Жду звонка" Вы соглашаетесь с условиями
обработки персональных данных